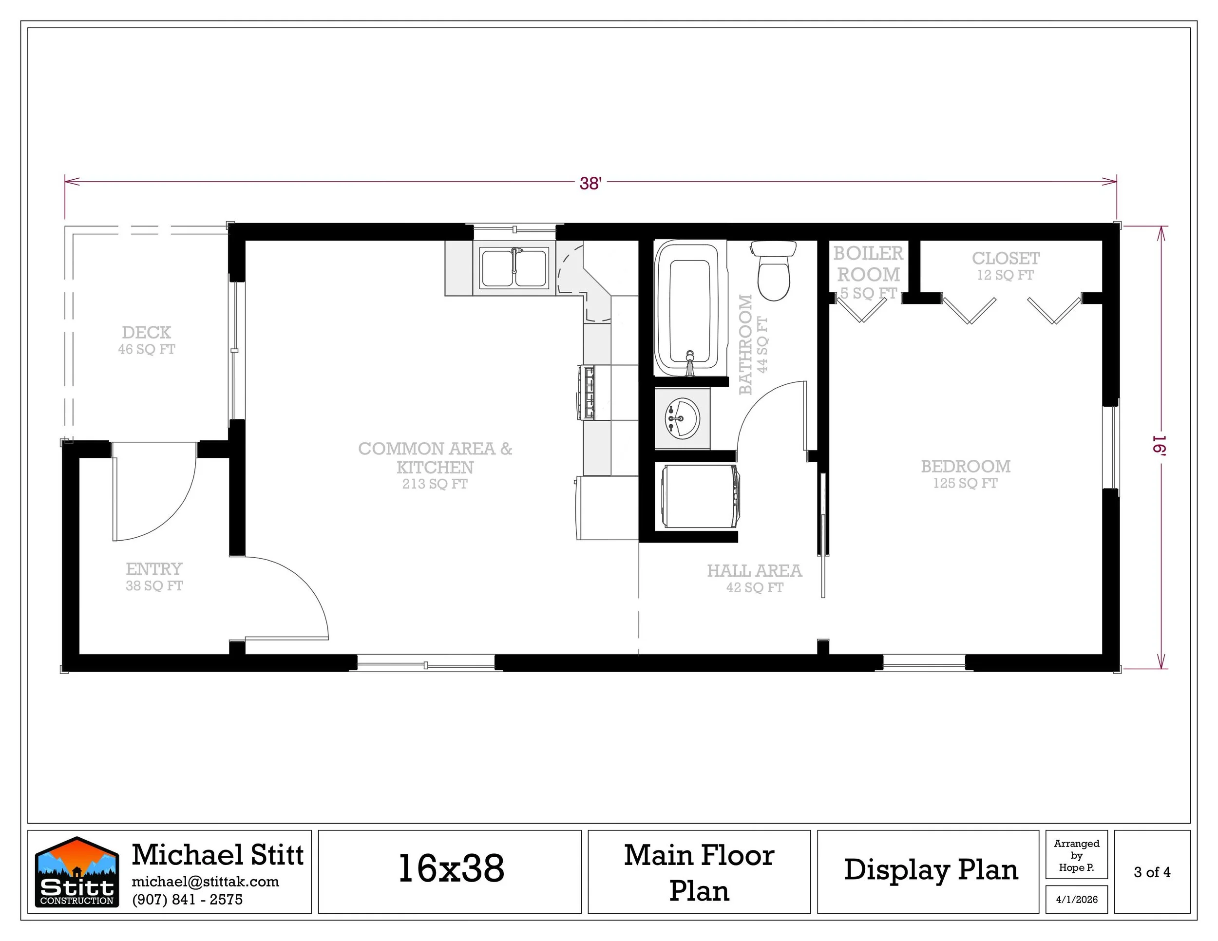
16×38
479 Total Square Feet
38sf Entry
213sf Kitchen and Main Area
42sf Hall Area
44sf Bath
5sf Boiler Room
12sf Closet
125sf Bedroom
Full Kitchen
Full Bath
Washer/Dryer Nook
Arctic Entryway
46sf Covered Deck
Lap Siding
Tongue and Groove Interior
479 Total Square Feet
38sf Entry
213sf Kitchen and Main Area
42sf Hall Area
44sf Bath
5sf Boiler Room
12sf Closet
125sf Bedroom
Full Kitchen
Full Bath
Washer/Dryer Nook
Arctic Entryway
46sf Covered Deck
Lap Siding
Tongue and Groove Interior